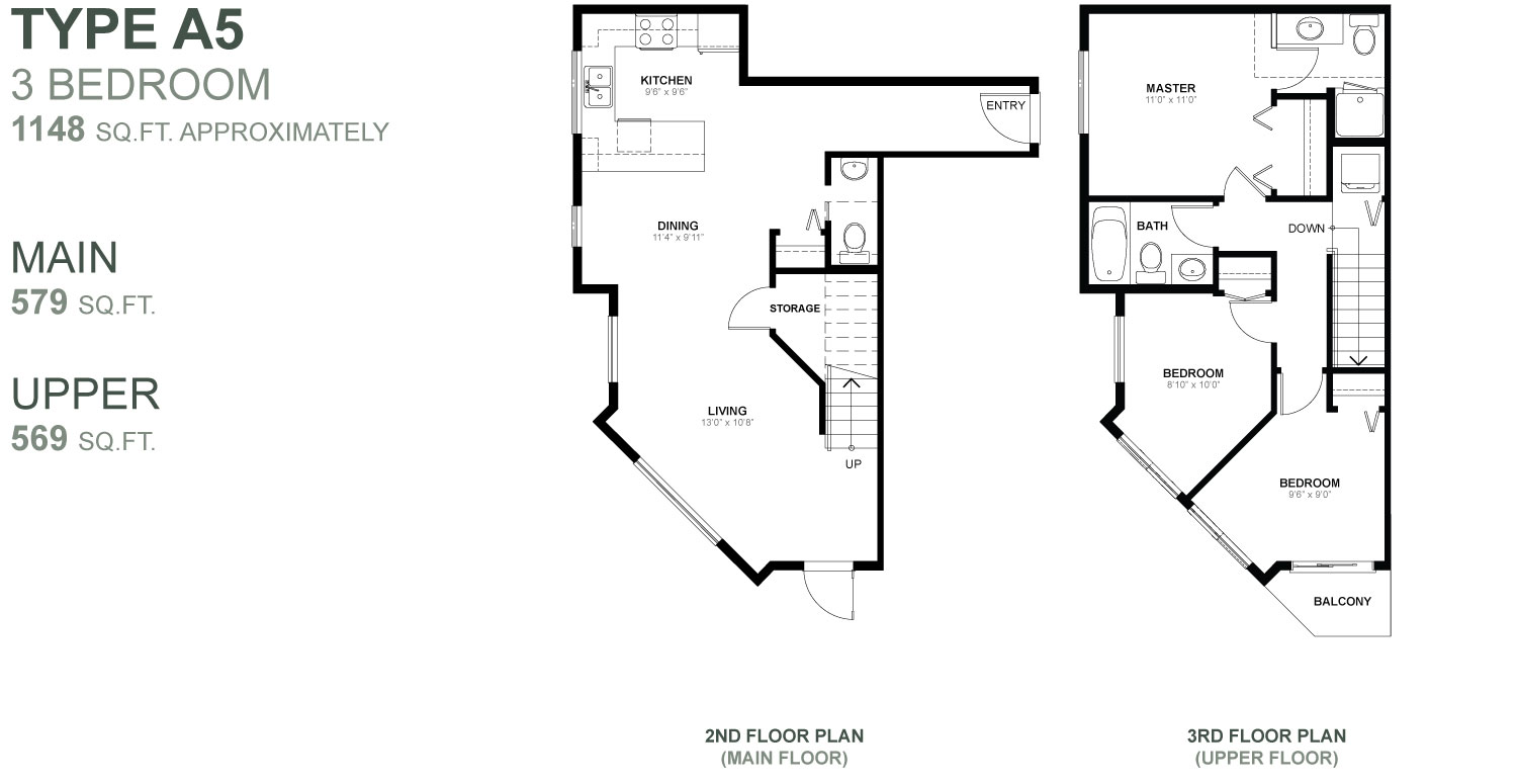
Cedar Park Place Floor Plan A5