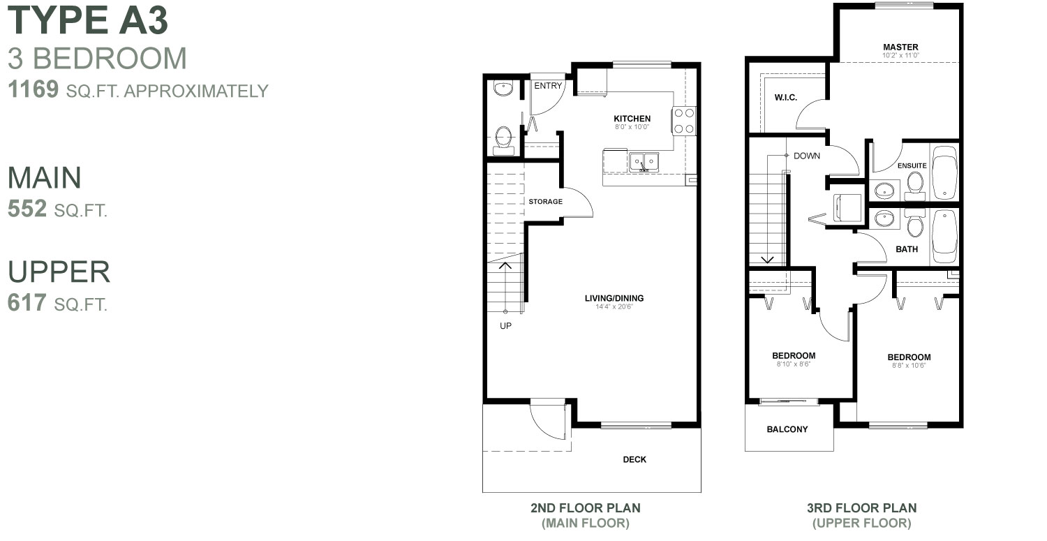
Cedar Park Place Floor Plan A3