HOME
CONTACT US
LOCATION
FLOOR PLAN
SITE PLAN
GALLERY
BUILDER
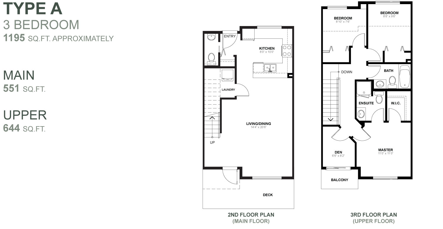
Type A
Type A1
Type A2
Type A3
Type A4
Type A5
Type B-B1
Type B2
Download All Plans (PDF)